2-к квартира, 8/16 эт., 59м²

Рязань, ул Княжье Поле, д. 16 к 1
ПРОДАЕТСЯ 2-комн. квартира 59,88 кв.м!
ЖК «ЮНЫЙ 8»

ИДЕАЛЬНЫЙ ВАРИАНТ для молодой семьи!
Покупка за наличные или в ИПОТЕКУ( !!поможем существенно снизить ставк!!у) и использовать материнский капитал как первый взнос!!!
О квартире:
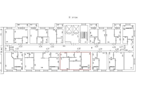
Уютная семейная квартира для тех, кто ценит комфорт и функциональность. Здесь у каждого члена семьи есть свое личное пространство. 2 комфортные комнаты на выбор ( 13, и 12 кв.м ) ; одна из комнат оборудована гардеробной; уютная кухня-гостиная для всей семьи ( почти 16 кв.м) с выходом на лоджию( 2,8 кв.м); функциональная прихожая с выделенной «грязной зоной» (8,6 кв.м); большой совмещенный санузел (4,5 кв. м). Варианты внутреннего обустройства будут зависеть от вашей фантазии.
О доме:
Кирпичный дом жилого квартала « Юный» - это достойное продолжение квартальной застройки в районе с развитой инфраструктурой, удобной транспортной доступностью и комфортным расположением в ПРИРОДНОЙ зоне. Свежий воздух, тишина. Рядом с домом зеленая зона для прогулок с детьми и восхитительных спортивных пробежек. Детский сад во дворе дома, школа (активно строится), сетевые магазины и кафе.
Юный 8 – современный дом, который спроектирован с учетом передовых строительных технологий и разнообразных потребностей жителей. ДОМ КИРПИЧНЫЙ ( в таком доме тепло зимой и не жарко летом, бытовые шумы слышны гораздо меньше, чем в монолитных домах) , с АВТОНОМНЫМ ОТОПЛЕНИЕМ , с ЗАКРЫТОЙ ТЕРРИТОРИЕЙ ДВОРА. В доме современные подъезды с дизайнерским холлом, просторными колясочными , современными лифтами и кладовыми на этаже.
САМОЕ время купить лучшую 2-к квартиру по лучшей цене!!!
ОСТАЛИСЬ ВОПРОСЫ ? ЗВОНИТЕ!!!
ПРИ покупке данной квартиры с нами вы гарантированно получаете полное юридическое сопровождение всех этапов сделки, помощь в одобрении ипотеки под комфортную ставку, помощь в использовании мат. капитала.
Тип предложения Продам
География Рязань, Рязанская область
Тип объекта
Вторичный рынок
Адрес
ул Княжье Поле, д. 16 к 1
Комнат
2
Планировка
Стандартная
Тип комнат
Раздельные
Общая площадь
59,00 м2
Жилая площадь
25,00 м2
Площадь кухни
16,00 м2
Этаж
8
Этажей в доме
16
Высота потолков
2,60 м
Санузел
Совмещенный
Балкон
Балкон
Дополнительно
лифт, закрытая территория
Условия сделки
ипотека

Все ваши сообщения мы читаем и все пожелания учитываем, но, к сожалению, ответ не гарантируем.

Если вы расчитываете получить ответ, не забудьте заполнить это поле.
Отправить

Сообщение будет отправлено на электронную почту автора объявления. Ваш электронный адрес будет ему доступен для ответа.

Отправить
Отправить